Тайга 64-60


Отделка - Чистовая

Это финальный этап отделки, могут быть покрашены стены и потолки, уложены плитка и ламинат, установлена сантехника и т.д.

Срок строительства – от 1 месяца от 5 507 000 ₽


Схема фасада

Основные характеристики

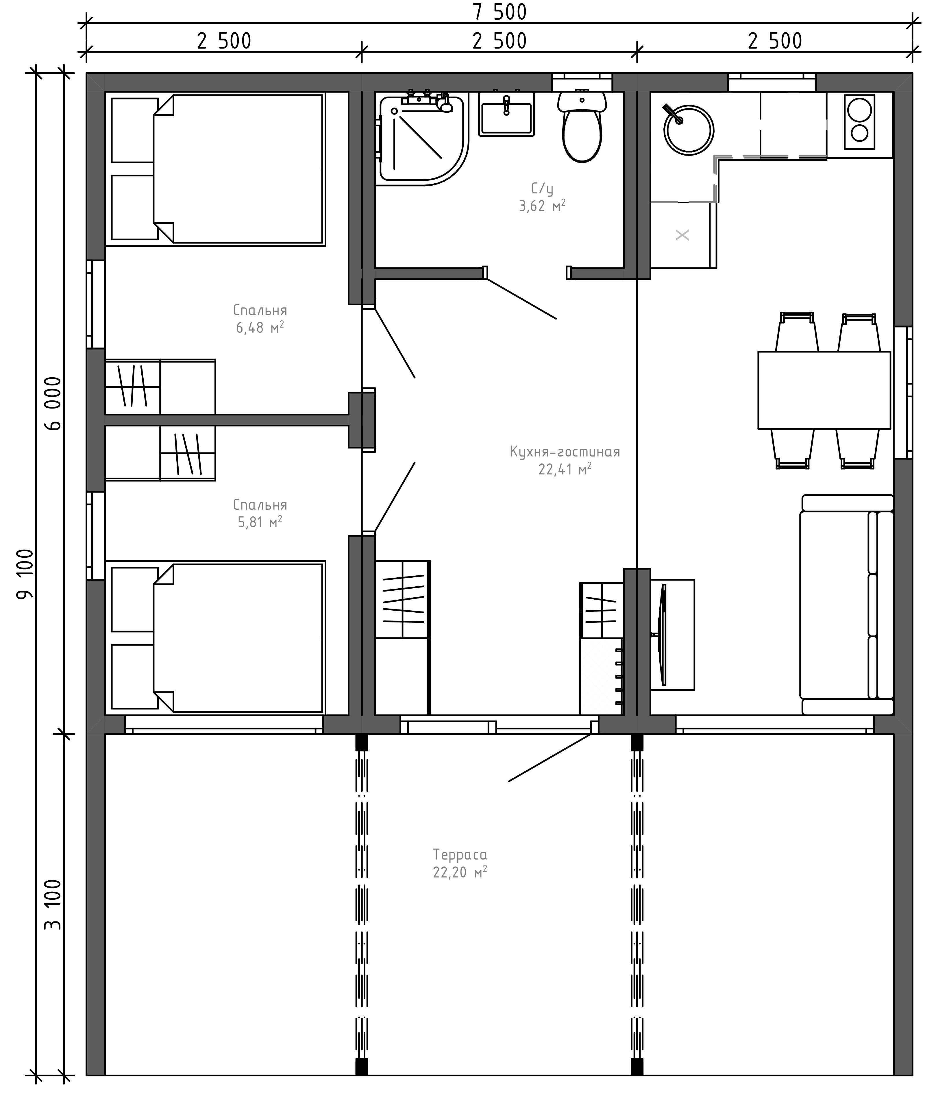
  • Площадь застройки 68 м2
  • Площадь дома 60.5 м2
  • Количество надземных этажей 1
  • Количество подземных этажей 0
  • Высота дома 3.48 м
  • Высота потолков 2.6 м
  • Объем надземной части 211 м3
  • Пригодность для постоянного проживания Да
  • Архитектурный стиль Барнхаус
  • Модульное строительство с конструкциями заводского изготовления Нет
  • Наличие домокомплекта Нет
  • Наличие типовой проектной документации Нет

Подключение к сетям

  • Электроснабжение Центральное / Индивидуальное
  • Газоснабжение Не предусмотрено
  • Теплоснабжение Индивидуальное
  • Водоснабжение Индивидуальное
  • Водоотведение Локальные очистные сооружения
  • Отопление Индивидуальное
  • Вентиляция Естественная
  • Противопожарная система Нет
  • Улучшенные шумовые характеристики Да
  • Изоляция воздушного шума Да
  • Приборы учета тепловой энергии Нет
  • Автоматизированное регулирование параметров теплоносителя Нет
  • Датчики протечки воды Нет

Объемно-планировочные решения

  • Спальни 2
  • Санузлы 1
  • Балконы Отсутствуют
  • Лоджии Отсутствуют
  • Совмещенная кухня-гостиная Да
  • Камин Нет
  • Веранда Нет
  • Пристроенный гараж/крытая автостоянка Нет
  • Чердачное помещение Нет
  • Подвальное помещение Нет
  • Терраса Да

Конструктивные решения

  • Материал наружных стен и несущих конструкций Деревянные каркасные
  • Толщина наружных стен 210 мм
  • Тип фундамента Свайно-винтовой
  • Материал перекрытий Деревянные
  • Основной материал фасадов Дерево
  • Тип кровли Двускатная
  • Материал кровли Металлические рулонные или листовые материалы
  • Материал внутренних перегородок Деревянные
  • Толщина внутренних перегородок 100 мм
  • Эксплуатируемая или зеленая кровля Нет